


PAUL DWYER
Director
After a successful career as a CAD Manager and having worked with some the UK’s best RC Detailing service providers and consulting engineers, I decided to start up my own RC Detailing consultancy, using Draughtsmen and RC Detailers that I have personally worked with / for, specially selected for their skill. It is important that the Draughtsmen and RC Detailers we use have a sound knowledge of structural behaviours and are qualified to at least technician level and who, combined, have experience in all types of RC Detailing including high-rise residential structures, bridges and large commercial projects.
CONCRETE DETAILING
RC Detailing (main service). We can produce Reinforced Concrete drawings for all structural elements within the Civil and Structural Engineering environment. Including bridges, large multi-storey frames (residential and commercial), sub-structures, basement extensions, RC sequenced underpinning and large residential dwellings. These drawings can be produced using either AutoCad or CADSRC software. Projects are priced either by drawing rate (preferred) or, where necessary, lump sum basis.
STEELWORK DETAILING
We can produce fully detailed drawings from standard to complex structural steelwork in both 2D & 3D format for all structural elements within the Civil and Structural Engineering environment. Including bridges & large multi-storey structural frames. These drawings are produced using AutoCad software. We will also be offering a Tekla and Revit service soon. Projects are priced either by drawing rate (preferred) or, where necessary, a lump sum basis.
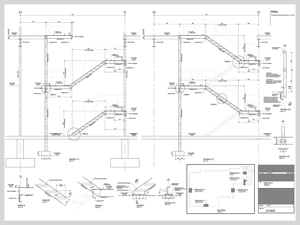
GENERAL ARRANGEMENT DRAWINGS
We can produce fully detailed GA drawings for standard to complexed structures in both 2D & 3D formats for all structural elements within the Civil and Structural Engineering environment. Including bridge, large multi-storey structural frames & residential and commercial properties. These drawings are produced using AutoCad software. We will also be offering a Tekla and Revit service soon. Projects are priced either by drawing rate (preferred) or, where necessary, lump sum basis.
4 Squerryes Park Cottages,
Goodley Stock Road,
Westerham, Kent,
TN16 1RD
Email: paul.dwyer@pjddrafting.com
Mobile: +44(0) 7950639023